83 Hawkchurch Resort and Spa

83 Hawkchurch Resort and Spa, Wareham Road, Hawkchurch, Axminster, EX13 5UL


Key Information

Sleeps: 6

Beds: 3

Pets Allowed: Yes

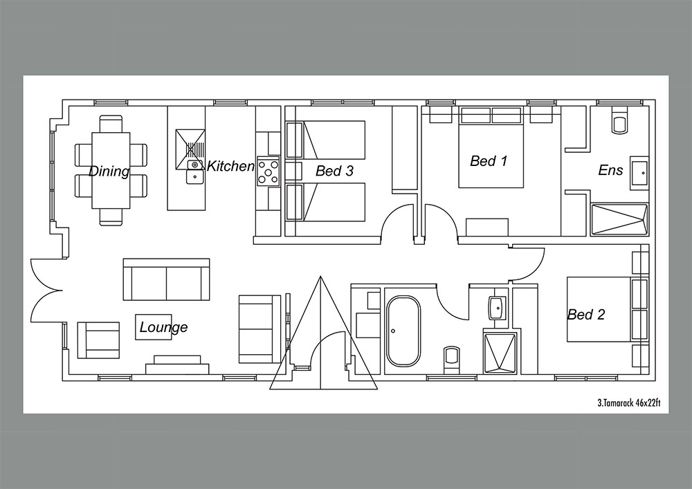
Size: 46' x 22'

Year of Manufacture: 2016

Make: Oakgrove

Model: Tamarack

Licence End Date: July 2051 negotiable with park

Park's Annual charges: £8000.00


About the Property

Discover your dream retreat in this Oakgrove Tamarack holiday lodge on a premium front row location.

A stunning haven boasting panoramic views of the picturesque Axe Valley. Step onto the expansive decking area, perfect for soaking up the scenery, with ample space for outdoor relaxation and entertainment, plus two convenient parking spaces.

Inside, indulge in luxury with three inviting double bedrooms, each featuring double wardrobes and fitted TVs for ultimate comfort and convenience. Pamper yourself in the spacious en suite, complete with a luxurious walk-in shower. Additionally, enjoy the indulgence of a second bathroom, featuring a walk-in shower and a floor-mounted bath, both equipped with underfloor heating and central heated towel rails for a touch of opulence.

Relax and unwind in the generous lounge area, equipped with a TV, alongside a dining area and a state-of-the-art kitchen. Recently installed, the new German kitchen boasts premium Siemens and Neff appliances, ensuring every culinary need is met with ease.

Keep your living space organised with an excellent hallway offering ample cupboard space for clothes, shoes, and more. Plus, enjoy the convenience of included appliances such as a fridge-freezer, dishwasher, double oven, microwave, washing machine dryer, and fitted enclosed dustbins, making everyday living effortless and enjoyable.

This holiday home presents an unparalleled opportunity to embrace luxury living amidst the natural beauty of the Axe Valley, offering comfort, convenience, and breathtaking views in every corner.

Hawkchurch Resort and Spa has an open season of 11 months for second home / holiday use.


Features

  • Designated parking
  • Dishwasher
  • Double glazing
  • Driveway parking
  • Ensuite shower
  • Family bathroom with shower
  • Fridge/Freezer
  • Heating: Mains gas
  • Heating: Underfloor
  • Hob
  • Internet access
  • Microwave
  • Oven
  • Patio decking
  • Satellite/cable TV
  • Television
  • Washer/dryer
  • Wheelchair friendly
  • Wifi

About the park / location

Nestled amidst the serene beauty of South Devon, this haven offers an unparalleled escape from the hustle and bustle of everyday life.

Indulge in ultimate relaxation with exclusive access to fabulous spa facilities, including an indoor hydrotherapy pool designed for guests aged 16 and above, ensuring a serene and tranquil environment. Unwind further in the Hammam-style sauna, embracing the rejuvenating benefits of heat therapy.

Discover a true sanctuary with your very own spa retreat, where you and your family can enjoy a range of indulgent treatments at the Ezina Spa, or simply unwind in the indoor heated swimming pool and steam room. After a day of pampering, dine in style at the Bistro and unwind with a refreshing drink at the bar, soaking in the serene atmosphere.

Owning a holiday home at Hawkchurch Resort & Spa means having the ultimate sanctuary to escape to whenever you desire, with luxury amenities and endless opportunities for relaxation and exploration in the stunning surroundings of South Devon. 

This location is completely surrounded by fields, meadows and farm land - no built up areas.  Lyme Regis is approx 5 miles away and Charmouth 4 miles.

 

Park Facilities

  • Coffee shop
  • Gym
  • Health Spa
  • Indoor swimming pool
  • Restaurant
  • Shop/supermarket
  • Gated entry



All descriptions, dimensions, references to condition and necessary permissions for use and occupation and other details are given in good faith and are believed to be correct, but any intending purchasers should not rely on them as statements or representations of fact, but must satisfy themselves by inspection or otherwise as to their correctness.